
Create your perfect farmhouse home design
Everything you need to know about modern and traditional farmhouse style house plans — plus how to make them work for you.
The farmhouse home design experts at Jewkes Design can help you create your dream modern farmhouse, European farmhouse, or traditional farmhouse.
Talk to a farmhouse home design specialist
Get a fast and free consultation

Discover timeless farmhouse design for the modern homeowner: Practical, simple, and effortlessly beautiful.
The modern farmhouse is where cozy meets contemporary and is one of the most popular residential exterior and interior design styles. With peaceful and functional aesthetics, the perfect farmhouse can create a unique and idyllic living experience for you and your family.
Traditional farmhouse plans
Though they share many common characteristics, farmhouse style is generally separated into two distinct design aesthetics: traditional and modern. According to Architectural Digest, modern farmhouse ranks first in popularity in American home design, and traditional farmhouse ranks second.
True to the name, traditional farmhouse plans — also known as classic farmhouse plans — draw inspiration from the design aesthetic of rural homes and agricultural buildings. Classic farmhouse floor plans typically feature a simple rectangular or square floor plan, a gabled roof, and a front porch. Traditional farmhouse floor plans bring influence from more niche farmhouse home designs, like the farmhouse barndominium plans.
Common features of these old style farmhouse plans include natural materials like wood and stone, a functional layout, and a focus on simplicity and comfort. The style creates a cozy and welcoming atmosphere with rustic elements such as exposed beams, shiplap walls, and antique decor.

European farmhouse plans
Modern farmhouse plans give the classic American farmhouse a modern makeover, ditching some of the rustic elements and adding more sophisticated features. Keeping the country charm, but mixing in a modern or industrial look creates the perfect blend of refinement and familiarity. Modern farmhouse floor plans and exteriors are characterized by metal roofs, black grid windows, reclaimed wood beams, and industrial lighting. Using minimalism and sleek design can give your custom farmhouse that modern look you’re after.

Modern farmhouse plans
Modern farmhouse style is a design aesthetic influenced by American farmhouse plans that blend traditional elements with contemporary features. The modern farmhouse style ditches rustic elements in favor of more contemporary and sophisticated features, like grey kitchen cabinets. Modern farmhouse floor plans typically include an open living area, master suites with massive walk-in closets, clean lines, and neutral colors with natural wood and metal accents.
Modern farmhouse interiors often incorporate industrial touches, such as black metal fixtures, exposed pipes, and farmhouse stained concrete floors, to create a unique and contemporary look. Modern farmhouse decor often features antique or vintage pieces mixed in for contrast. Exteriors commonly take advantage of board and batten siding, large windows for natural light, wraparound porches, a gabled roof, and natural finishes such as wood and stone.
Overall, the modern farmhouse style provides functionality and simplicity with a warm and inviting atmosphere suitable for urban and rural living.

Take the guesswork out of creating the perfect farmhouse.
Creating the perfect farmhouse can seem daunting — especially for first-time homeowners. Finding the right designers, builders, contractors, and engineers can be expensive and time-consuming. Unfortunately, overpriced architects and new contractors are more likely to underestimate the cost and time it takes to complete a project, leading to cost overruns and construction delays.
Farmhouse, meet home designer.
Jewkes Design's all-in-one home design solutions make it easy to build your dream home. With the support of seasoned home designers, engineers, and vetted home builders and contractors, we empower you to bring your perfect farmhouse to life with ease.

Farmhouse home design services
New custom farmhouse designs
Work with an experienced home designer to design and plan your perfect farmhouse. Our team of seasoned designers will create a completely unique and custom farmhouse design and tailor every aspect to your specific style, needs, and preferences.
Farmhouse home additions, remodels, and renovations
You don’t need a degree in construction management to pull off an incredible farmhouse remodel or renovation project. Instead, work with a talented team of farmhouse remodeling and renovation experts. We offer individual guidance and help you create the perfect atmosphere with an eye for detail that goes above and beyond.
Whether you're building a detached car garage, guest house, or wraparound porch, we can help. Your farmhouse design and engineering experts will listen to understand your needs, then draw up the perfect home addition.
Farmhouse style house plans
Shop our curated selection of pre-made farmhouse style house plans made to fit any land size or lot. These designer-curated plans are a convenient starting point for any homeowner or contractor looking to break ground soon. We can also help you customize any home design feature to suit your needs and budget. Whether you are a first-time homeowner or an experienced builder, our pre-packed, farmhouse style house plans typically offer something special for everyone.
Design your dream farmhouse in 5 simple steps
Jewkes Design is a full-service home design firm with a reputation for beautiful craftsmanship and outstanding client service. From planning your perfect farmhouse through design and build, we’ll equip you with everything you need to realize your dream home with less stress and more confidence.

Step 1
Meet your home design team
Joining forces with a home design team is the first step towards creating the beautiful farmhouse you’ve always wanted. Expect exceptional results when you work with a home design expert to create custom farmhouse plans for your new house, remodel, or home addition.

Step 2
Farmhouse layout design
The second step in creating your dream farmhouse style home is to draft an open floor plan. We'll lay out the significant features of your new home, including the kitchen, bedrooms, bathrooms, and open-plan living area. Your farmhouse design experts will listen to understand your every need and ensure your vision comes to life.

Step 3
3D rendering and virtual reality (VR) walkthrough
The second step in creating your dream farmhouse style home is to draft an open floor plan. We'll lay out the significant features of your new home, including the kitchen, bedrooms, bathrooms, and open-plan living area. Your farmhouse design experts will listen to understand your every need and ensure your vision comes to life.

Step 3
Build with a vetted farmhouse home builder or contractor
Need help finding a home builder or contractor who specializes in farmhouse construction? We can match you with one of our trusted partners based on your timeframe, budget, and location. Build with confidence knowing our partners are all vetted professionals. We only work with builders and contractors who’ve met our exacting standards and have a track record of successful projects.

Step 3
Enjoy your beautiful new farmhouse
The final step is to get cozy and enjoy your new abode. Create memories that'll last a lifetime and bask in all that farmhouse living offers with peace of mind knowing that your investment will undoubtedly contribute to years of relaxation and joy.
Need a head start on your farmhouse project? Shop construction-ready farmhouse style house plans.
Design your modern or traditional farmhouse with curated looks.
Modern and traditional farmhouse floor plans have experienced a huge resurgence in popularity because they make it easy to create a unique, custom layout that blends the modern comforts of today with the classic charm of yesteryear. Get started fast when you select one of our pre-packed, farmhouse style house plans and build, or use them as your convenient starting point to customize.
With breathtaking exteriors guaranteed to make your home the envy of the neighborhood and luxurious interiors, you can have your dream farmhouse at an affordable price.
Customize every feature of your farmhouse plans.
Select modern and timeless farmhouse features for your new home, remodel, or home addition.
Each construction-ready farmhouse layout design offers end-to-end customization. Unlike your typical to-be-built farmhouse, our plans aren’t recycled from decades past or manufactured overseas. Every farmhouse floor plan we offer is hand-crafted by our expert farmhouse designers right here in the USA.
So whether you’re looking for a modern white and black farmhouse with open floor plans and modern fixtures or a rustic farmhouse with a wraparound porch, exposed beams, and hardwood floors — our curated farmhouse style houses give you the home of your dreams without breaking the bank.

The Bedford
1,771 SF
2-4 Bed
2-3 Bath
Bedford
BEDROOMS
BED
2-4
BATHROOMS
BATH
2-3
SQUARE FEET
SQ FT
1,771
DIMENSIONS
DIM
79'w 49'd












Request this plan
Make The Bedford your home

The Kennedy
3430 SF
3-5 Bed
3-4 Bath
Kennedy
BEDROOMS
BED
3-5
BATHROOMS
BATH
3-4
SQUARE FEET
SQ FT
3430
DIMENSIONS
DIM
43'w 47'd













Request this plan
Make The Kennedy your home

The Savona
4470 SF
3-7 Bed
2.5-4.5 Bath
Savona
BEDROOMS
BED
3-7
BATHROOMS
BATH
2.5-4.5
SQUARE FEET
SQ FT
4470
DIMENSIONS
DIM
73'w 63'd











Request this plan
Make The Savona your home

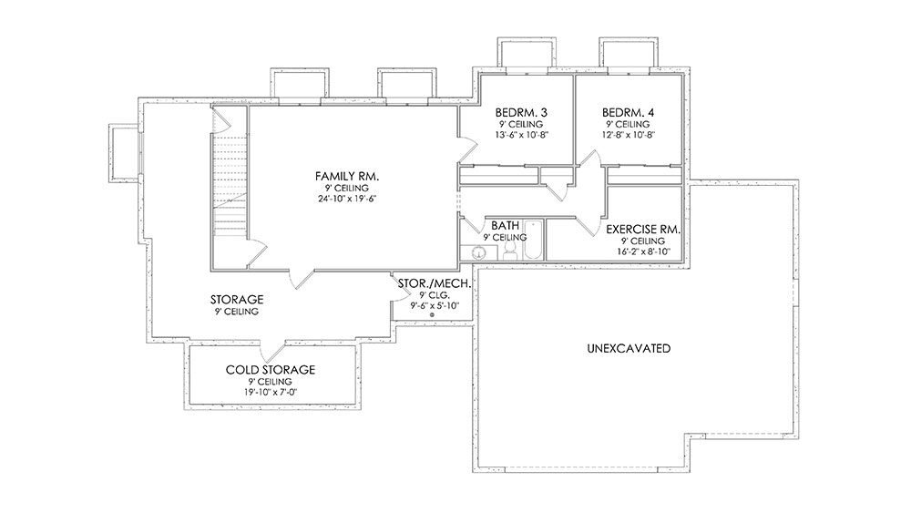
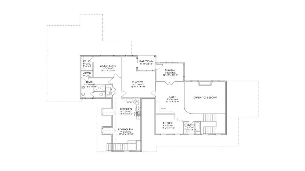
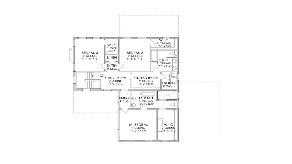
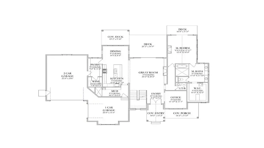
The Smithfield
4782 SF
3-4 Bed
3-4 Bath
Smithfield
BEDROOMS
BED
3-4
BATHROOMS
BATH
3-4
SQUARE FEET
SQ FT
4782
DIMENSIONS
DIM
81'w 49'd






.webp)





Request this plan
Make The Smithfield your home

The Winona
3695 SF
3-5 Bed
2-3 Bath
Winona
BEDROOMS
BED
3-5
BATHROOMS
BATH
2-3
SQUARE FEET
SQ FT
3695
DIMENSIONS
DIM
85'w 54'd












Request this plan
Make The Winona your home

The Loveland
4,874 SF
3-4 Bed
4-5 Bath
Loveland
BEDROOMS
BED
3-4
BATHROOMS
BATH
4-5
SQUARE FEET
SQ FT
4,874
DIMENSIONS
DIM
79'w 72'd












Request this plan
Make The Milan your home

The Lincoln
3,531 SF
2-4 Bed
2-3 Bath
Lincoln
BEDROOMS
BED
2-4
BATHROOMS
BATH
2-3
SQUARE FEET
SQ FT
3,531
DIMENSIONS
DIM
79'w 72'd












Request this plan
Make The Lincoln your home

The Willow
3411 SF
3-4 Bed
2-6 Bath
Willow
BEDROOMS
BED
3-4
BATHROOMS
BATH
2-6
SQUARE FEET
SQ FT
3411
DIMENSIONS
DIM
82'w 79'd












Request this plan
Make The Willow your home

The Huey
3,216 SF
3-5 Bed
2.5-3.5 Bath
Huey
BEDROOMS
BED
3-5
BATHROOMS
BATH
2.5-3.5
SQUARE FEET
SQ FT
3,216
DIMENSIONS
DIM
40'w 47'd













Request this plan
Make The Huey your home

The Knighton
4,507 SF
3-5 Bed
2-3 Bath
Knighton
BEDROOMS
BED
3-5
BATHROOMS
BATH
2-3
SQUARE FEET
SQ FT
4,507
DIMENSIONS
DIM
62'-10"w 54'-0"d













Request this plan
Make The Knighton your home

The Palfreyman
3,780 SF
3-5 Bed
3-4 Bath
Palfreyman
BEDROOMS
BED
3-5
BATHROOMS
BATH
3-4
SQUARE FEET
SQ FT
3,780
DIMENSIONS
DIM
72'-4"w 56'-1"d












Request this plan
Make The Palfreyman your home

The Bend
2,365 SF
3-5 Bed
2-3 Bath
Bend
BEDROOMS
BED
3-5
BATHROOMS
BATH
2-3
SQUARE FEET
SQ FT
2,365
DIMENSIONS
DIM
55' - 8"w 43' - 8"d












Request this plan
Make The Bend your home

The McAllen
4,309 SF
3-5 Bed
2.5-3.5 Bath
McAllen
BEDROOMS
BED
3-5
BATHROOMS
BATH
2.5-3.5
SQUARE FEET
SQ FT
4,309
DIMENSIONS
DIM
73'-4"w 70'-6"d












Request this plan
Make The McAllen your home

The Sandpoint
2,946 SF
3 Bed
3 Bath
Sandpoint
BEDROOMS
BED
3
BATHROOMS
BATH
3
SQUARE FEET
SQ FT
2,946
DIMENSIONS
DIM
55'-10"w 73'-4"d












Request this plan
Make The Sandpoint your home

The Salem
5,766 SF
3-5 Bed
4.5-5.5 Bath
Salem
BEDROOMS
BED
3-5
BATHROOMS
BATH
4.5-5.5
SQUARE FEET
SQ FT
5,766
DIMENSIONS
DIM
100'-4"w 77'-8"d













Request this plan
Make The Salem your home

The Florence
4,907 SF
3-5 Bed
2-3.5 Bath
Florence
BEDROOMS
BED
3-5
BATHROOMS
BATH
2-3.5
SQUARE FEET
SQ FT
4,907
DIMENSIONS
DIM
64'-0"w 59'-8"d











Request this plan
Make The Florence your home

The Greenville
3,516 SF
3-5 Bed
2-3.5 Bath
Greenville
BEDROOMS
BED
3-5
BATHROOMS
BATH
2-3.5
SQUARE FEET
SQ FT
3,516
DIMENSIONS
DIM
55'-6"w 47'-0"d













Request this plan
Make The Greenville your home

The Athens
4,450 SF
3-5 Bed
3.5-5.5 Bath
Athens
BEDROOMS
BED
3-5
BATHROOMS
BATH
3.5-5.5
SQUARE FEET
SQ FT
4,450
DIMENSIONS
DIM
77'-4"w 57'-8"d












Request this plan
Make The Athens your home

The Antioch
5,576 SF
4-6 Bed
3.5-6 Bath
Antioch
BEDROOMS
BED
4-6
BATHROOMS
BATH
3.5-6
SQUARE FEET
SQ FT
5,576
DIMENSIONS
DIM
89'w 58'4"d













Request this plan
Make The Antioch your home

The Sheffield
5,303 SF
4-6 Bed
3.5-4.5 Bath
Sheffield
BEDROOMS
BED
4-6
BATHROOMS
BATH
3.5-4.5
SQUARE FEET
SQ FT
5,303
DIMENSIONS
DIM
84'-10"w 66'-4"d













Request this plan
Make The Sheffield your home

The Harrison
4,362 SF
2-4 Bed
2.5-3.5 Bath
Harrison
BEDROOMS
BED
2-4
BATHROOMS
BATH
2.5-3.5
SQUARE FEET
SQ FT
4,362
DIMENSIONS
DIM
94'-8"w 101'-4"d












Request this plan
Make The Harrison your home
FREQUENTLY ASKED QUESTIONS
According to a recent article published by Architectural Digest, the most popular home styles in the United States right now are the farmhouse, boho, and midcentury modern styles. However, if you split the farmhouse home style into modern and traditional or classic farmhouse styles, then the modern farmhouse style would rank first for popularity, and the classic farmhouse style would rank second.
Though they share many common characteristics, farmhouse style is generally separated into two distinct design aesthetics: traditional and modern. Traditional farmhouse plans — also known as classic farmhouse plans — have a rustic country style and use colors like navy blue, forest green, and burgundy. As the name suggests, the modern farmhouse style brings more contemporary elements into the aesthetic. Modern farmhouse designs typically incorporate features from American farmhouse plans, including less intricate finish work and more open floor plans. Modern farmhouse interiors often use clean lines, neutral colors, and modern finishes.
Over the years, we have seen modern and traditional farmhouse styles evolve into differing variations. The various farmhouse styles include the coastal farmhouse, the french country farmhouse, the American farmhouse, the European farmhouse, the boho farmhouse, the black modern farmhouse, and the farmhouse barndominium.
There are many places where you can find fantastic farmhouse floor plans. Visit home designer websites, architectural design magazines, and Pinterest to find inspiration for your farmhouse home plan.
As the heart of the home, the kitchen is the perfect place to start your modern farmhouse journey. The first thing you need for your farmhouse style kitchen is sleek grey or blue cabinetry with brushed metal handles. Add oversized industrial light fixtures and a large, raw wood dining table for family and friends to gather around. To pull off a modern farmhouse look, stick to modern stainless steel appliances and avoid retro shapes and colorways. Floating oak shelves are also ideal for displaying farmhouse decor and breaking up the space created with white walls.
Let’s make your dream farmhouse a reality.
Coast-to-coast, homeowners are bringing their farmhouse dreams to life. With a track record of success and a collaborative approach, we'll give you everything you need to realize your dream home.